Z6·尊龙凯时「中国」官方网站尊龙凯时人生就是搏

menu
menu
新华医疗 menu
医院感染控制系统整体解决方案

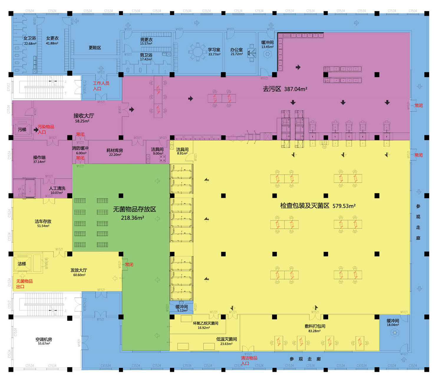
医疗消毒供应中心系统解决方案(社会化)

尊龙凯时人生就是搏

医疗消毒供应中心系统解决方案(社会化)

图层 2.jpg

图层1.jpg


尊龙凯时人生就是搏